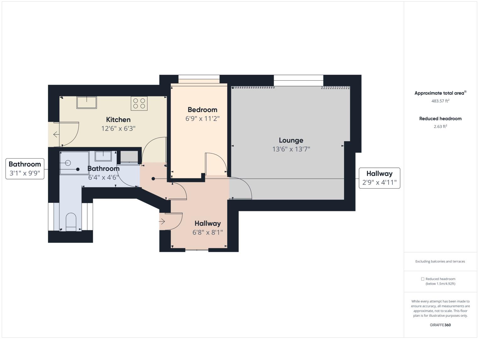
Overview
Modern Elegance in Moseley: A Refurbished Retreat with Style and Convenience!" 🌟🏡<br/><br/>🌟 Welcome to your new home in the heart of Moseley! <br/>🏡 This charming second-floor flat in a character property has undergone a stunning refurbishment, offering a perfect blend of modern living and classic elegance. 🛋οΈβ¨<br/><br/>Step into a haven of style, where neutral greys and crisp whites set the tone for a contemporary living experience. 🎨 The newly carpeted bedroom, though compact, is a masterclass in efficiency, boasting a luxurious ottoman bed for additional storage, a bedside table, and a spacious wardrobe. 🛌🚪<br/><br/>The lounge, bathed in natural light, is generously proportioned and versatile enough to create a dining area. 🍽οΈ Picture-perfect views of the manicured communal garden provide a serene backdrop to your daily life. 🌳🌷<br/><br/>Indulge in the luxury of a brand-new shower room, adorned with splashback panels, featuring a modern shower, toilet, and wash basin. 🚿🚽 <br/>Practicality meets elegance with an additional storage cupboard for your linens and towels. 🛁🔑<br/><br/>The kitchen is a culinary dream, with a contemporary design and top-of-the-line appliances. 🍳🥂 <br/>The integrated fridge, freezer, oven, hob, and extractor, along with a free-standing washing machine, ensure both style and functionality.<br/><br/>Location is everything, and this home is just a short stroll away from the vibrant village of Moseley. 🚶ββοΈ Explore a plethora of amenities, from delightful dining options to convenient takeaways, right at your doorstep. 🍜🍲<br/><br/>Commute with ease, as public transport is readily accessible, and the upcoming rail link promises even greater convenience. 🚆🚌 <br/><br/>The front driveway, available on a first-come, first-served basis, and ample on-street parking, add a practical touch for your convenience. 🚗🅿οΈ<br/><br/>For nature lovers, your choices are endless, with Cannon Hill Park, Highbury, and the private park of Moseley offering a breath of fresh air and a variety of outdoor activities. 🌳🌲<br/><br/>Make this refurbished flat your sanctuary and experience the joy of stylish living in the heart of Moseley. 🏡💖 Act fast, as this gem won't stay on the market for long! 🕒β¨<br/><br/><br/>
Apartment
Double Glazing
One Bedroom
New Kitchen
New Shower room
Close to Local Transport Links
Close to fantastic local amenities
Off Street Parking